Projekte
Büro
Leistungen
Partner
Referenzen
Projekte
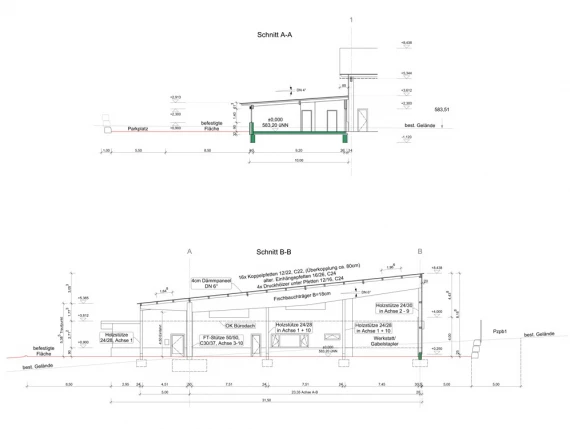
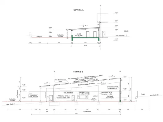
Neubau einer Logistikhalle in Bietigheim
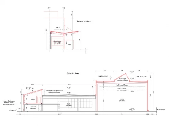
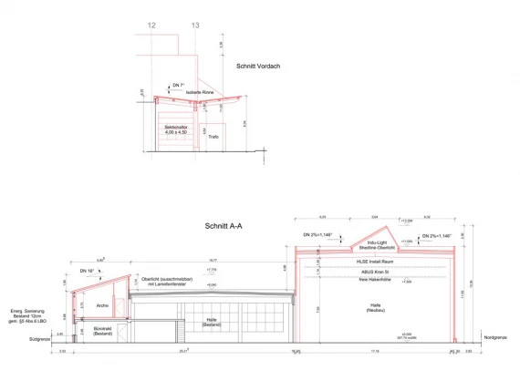
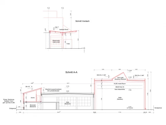
Neubau Betriebsgebäude in Herrenberg-Gültstein
Neubau Betriebsgebäude in Herrenberg-Gültstein
Erweiterung der Walter Renz GmbH in Nagold
1. BA Hallenerweiterung der Dietrich Aldinger GmbH in Nagold
Wohnhaus S 18 in Schramberg-Schönbronn
Erweiterung Produktionshalle in Nagold
Neubau Kaltlagerhalle mit Büro in Nagold
Wohnhaus K 18 Hochdorf
Wohnhaus E 29 Nagold
Wohnhaus T 17 Vollmaringen
Reifenlager mit Carport T 17 Haiterbach
Sanierung Kirchturm und Kirche St. Antonius Kuppingen
5 Familienhaus W 16 Nagold
Mehrfachbeauftragung Festhalle Haiterbach
Wohnhaus S 16 in der Nähe von Nagold
Wartungs- Instandsetzungshalle Stetten a.k.M.
Neubau von zwei 4 Familienhäuser Nagold
Produktionserweiterung der ALDINGER AIROVATION Nagold
Wohnhaus W 14 Vollmaringen
ältere Projekte ➤