Projekte
Büro
Leistungen
Partner
Referenzen
Projekte
Neubau einer Logistikhalle in Bietigheim
Neubau Betriebsgebäude in Herrenberg-Gültstein
Neubau Betriebsgebäude in Herrenberg-Gültstein
Erweiterung der Walter Renz GmbH in Nagold
1. BA Hallenerweiterung der Dietrich Aldinger GmbH in Nagold
Wohnhaus S 18 in Schramberg-Schönbronn
Erweiterung Produktionshalle in Nagold
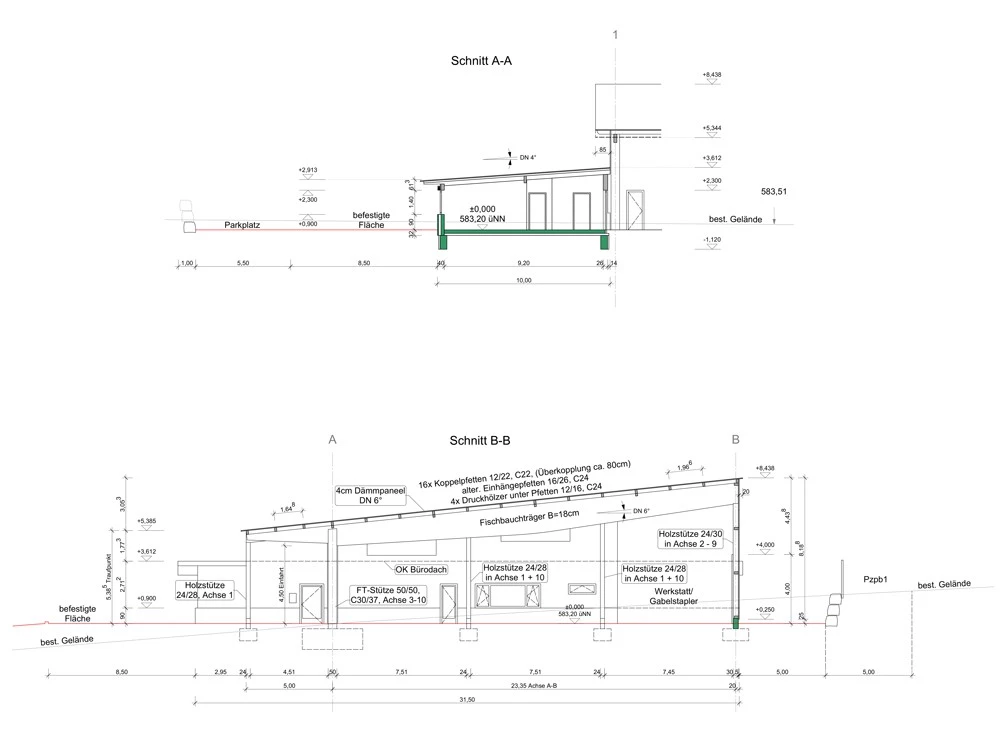
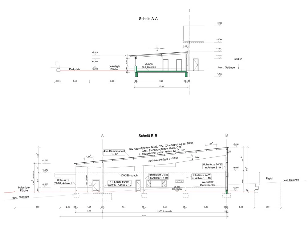
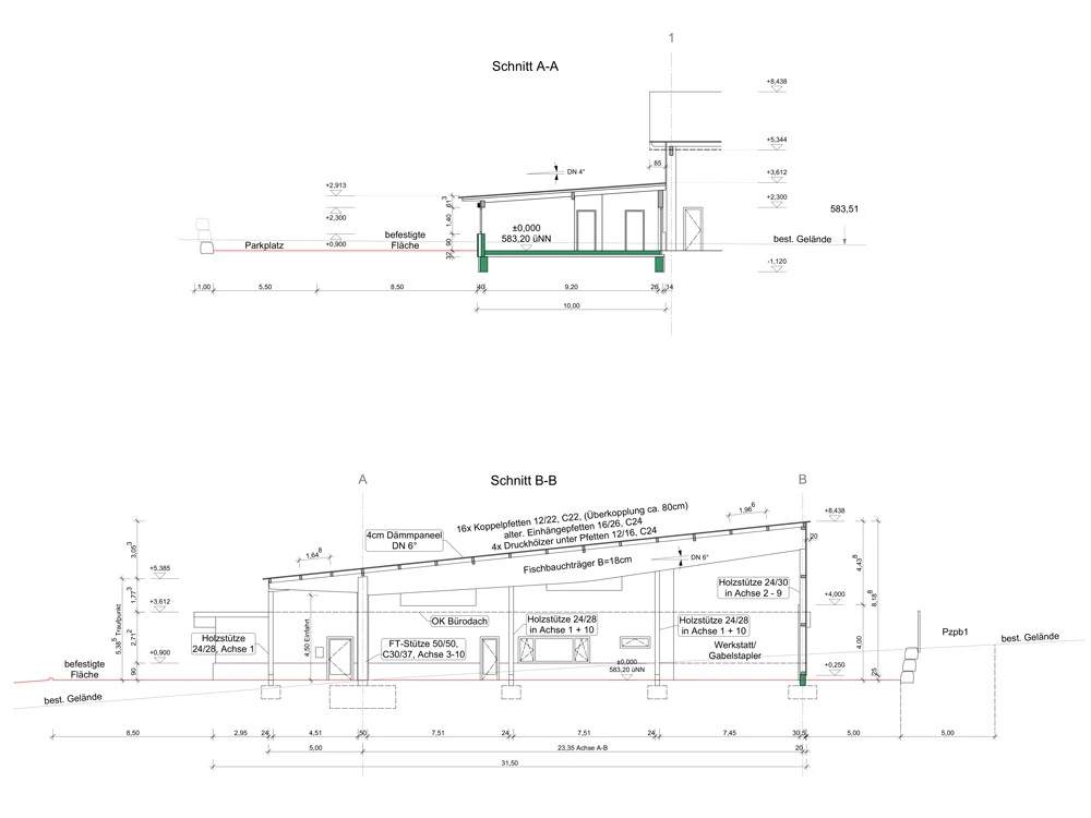
Neubau Kaltlagerhalle mit Büro in Nagold
Wohnhaus K 18 Hochdorf
Wohnhaus E 29 Nagold
Wohnhaus T 17 Vollmaringen
Reifenlager mit Carport T 17 Haiterbach
Sanierung Kirchturm und Kirche St. Antonius Kuppingen
5 Familienhaus W 16 Nagold
Mehrfachbeauftragung Festhalle Haiterbach
Wohnhaus S 16 in der Nähe von Nagold
Wartungs- Instandsetzungshalle Stetten a.k.M.
Neubau von zwei 4 Familienhäuser Nagold
Produktionserweiterung der ALDINGER AIROVATION Nagold
Wohnhaus W 14 Vollmaringen
Wohnhaus E 14 Nagold
Umbau IFIB Institut Tübingen
4 Familienhaus am Galgenberg Nagold
Wohnhaus A 12 Nagold
Wohnhaus mit Büro C 11 Nagold
Sanierung Rathausfassade Herrenberg
Sanierung Oberamtfassade Herrenberg
Energetische Sanierung Pfarrhaus Kuppingen
Büro- Produktionsgebäude Effringen
Umbau und Sanierung Gebäude 19 und 27 Stetten a.k.M.
Wohnhaus B 7 Ammerbuch
Wohnhaus K 7 Gärtringen
Wohnhaus K 6 Deckenpfronn
Wohnhaus R 5 Ehningen
Studie Besucherterrasse Flughafen München
Wohn- und Geschäftshaus C 1 Pliezhausen
➤
•
➤
Neubau Kaltlagerhalle mit Büro in Nagold
Ansichten
Ansichten
Ansichten