Entwurf - Planung - Bauleitung

Wohnhaus W 14 Vollmaringen

Bauherr

Privat

Planung

2013

Ausführung

2014

Wohnfläche
190 m²
Nutzfläche
110 m²
Kubatur
1.160 m³
Beschreibung

Auf einem langgezogenen Bestandsgrundstück am Ortsausgang von Vollmaringen wurde eine neues 3-geschossiges Einfamilienwohnhaus in Massivbauweise (36,5er Ytong) konzipiert.
Ein offener Galerie Eingang verbindet das Treppenhaus und die Flure auf den einzelnen Ebenen. Die Garage wurde im Untergeschoss ins Haus mit integriert.
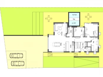
Im Erdgeschoss befinden sich klassisch die Wohnräume und im Dachgeschoss die Schlafräume.

Da der Bauherr selbständiger Steinmetz- und Steinbildhauermeister ist wurden vorwiegend hochwertige Natursteinmaterialien im Bereich der Böden, Bäder und Treppen ausgeführt.

Beheizung über Luftwärmepumpe in Kombination mit Solarthermie auf dem Flachdach. Holz-Aluminium Fenster.

Ansicht Ost Ansicht Ost
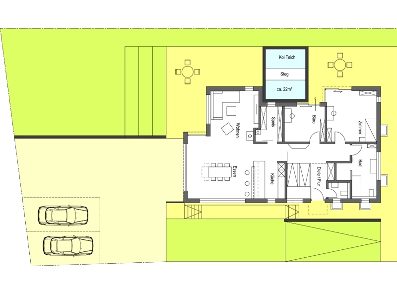
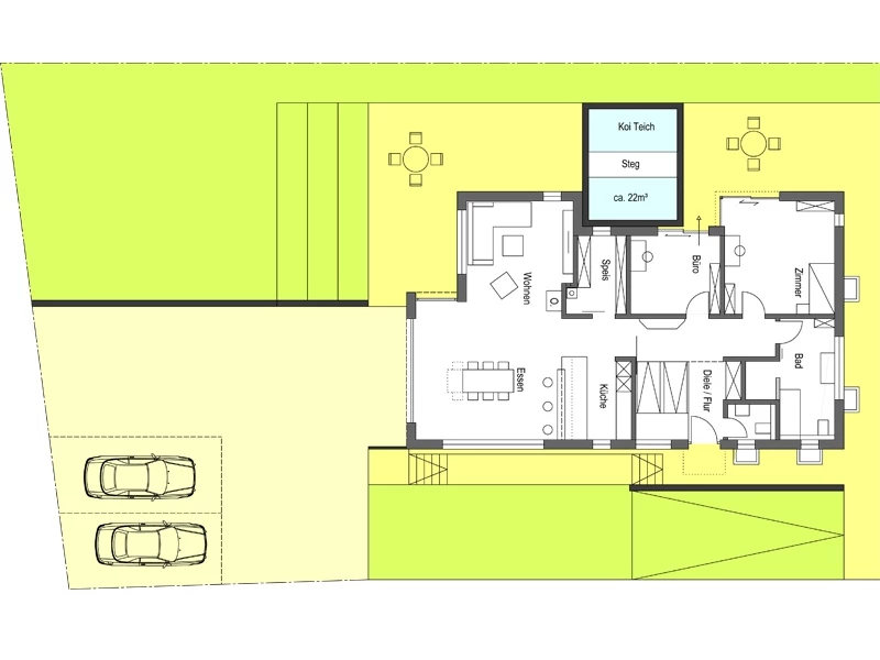
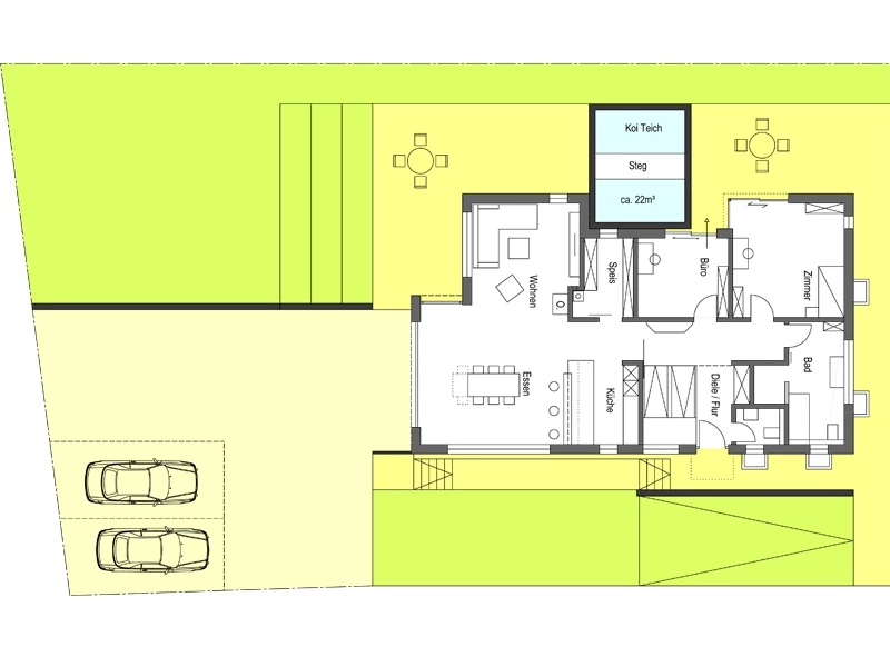
Grundriss EG Grundriss EG