Entwurf - Planung - Bauleitung

Wohnhaus A 12 Nagold

Bauherr

privat

Planung

2010

Ausführung

2011/2012

Beschreibung

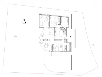
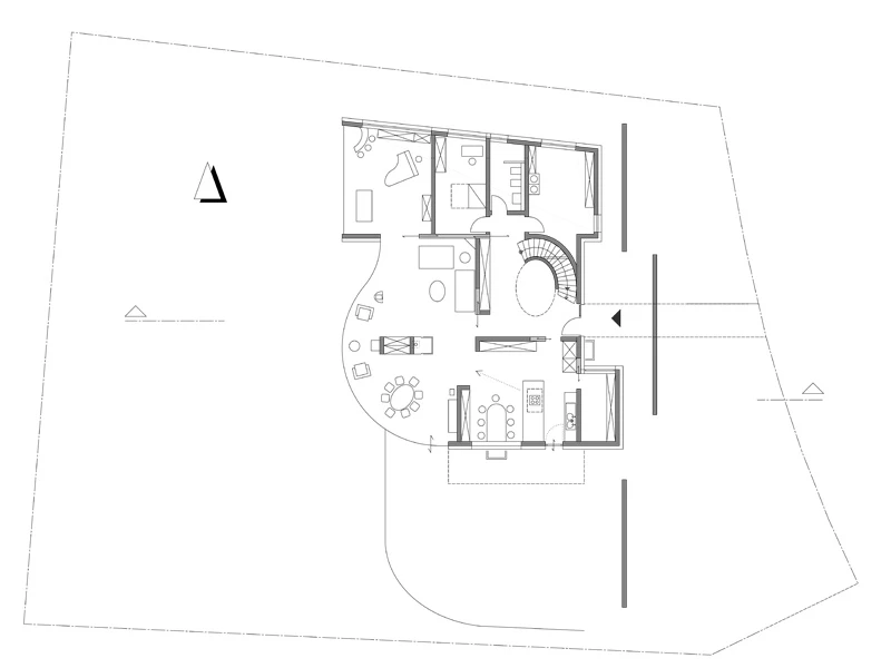
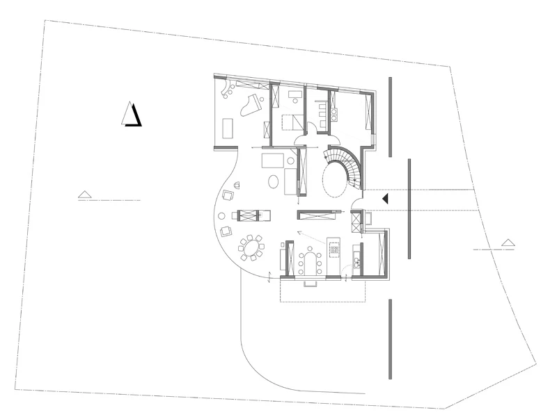
Neubau eines Einfamilienwohnhauses in exponierter Hanglage am Galgenberg. Die Erschliessung erfolgt bergseitig über einen frei gespannten und überdachten Stegzugang. Parallel kann das Haus auch von der unteren Strasse her erschlossen werden. Das Hauptgeschoss ist mit einer gebogenen auskragenden Ganzglasfassade über die Süd- und Westseite belichtet. Dies ermöglicht gleichzeitig einen Rundumblick über den gesamten Stadtkern von Nagold. Die Aussenanlage treppt sich über die gesamte Anlage mittels Terrassierungen ab.

Grundriss EG Grundriss EG
Schnitt Schnitt