Entwurf - Planung - Bauleitung

Wohnhaus E 14 Nagold

Bauherr

Privat

Planung

2013

Ausführung

2014

Wohnfläche
250 m²
Nutzfläche
80 m²
Kubatur
1.260 m³
Beschreibung

Auf einem steilen Bestands-Hanggrundstück (altes Wohnhaus wo die Familie gewohnt hatte wurde abgerissen) in exponierter Lage wurde ein neues 3-geschossiges Einfamilienwohnhaus in Massivbauweise (36,5er Ytong) mit neuer Doppelgarage (in den Hang eingeschoben) erstellt.
Das mittig in das Haus eingeschnittene und im Untergeschoss durchgesteckte Treppenhaus erschliesst alle Ebenen bis in das offene Dachstudio.
Das giebelständige Haus ragt über die durchgehende Untergeschoss- Sockelwand über und gleicht sich demnach auf moderne Art und Weise den bestehenden Satteldachhäusern in der Straße an.

Offene helle Wohnräume mit Blickbeziehungen an den angrenzenden Waldrand und über die Stadt bis hin zur Burgruine „Hohennagold“.
Beheizung über Gastherme in Kombination mit Solarthermie auf der südseitigen Satteldachhälfte.

Ansicht West Ansicht West
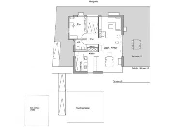
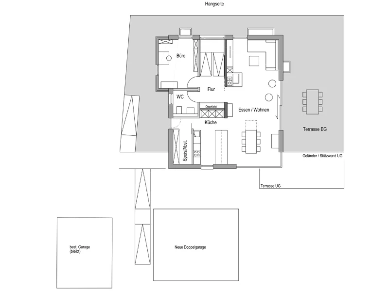
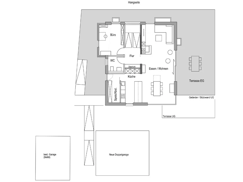
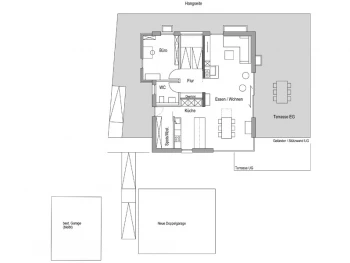
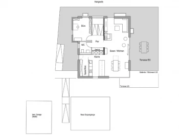
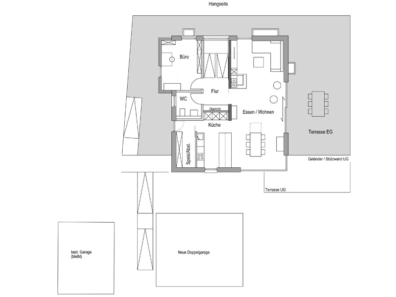
Erdgeschossgrundriss Erdgeschossgrundriss
Schnitt Schnitt