Entwurf - Planung - Bauleitung

Wohnhaus mit Büro C 11 Nagold

Bauherr

Jan Conzelmann

Planung

2010

Ausführung

2011

Wohnfläche
180 m²
Nutzfläche
65 m²
Bürofläche
90 m²
Kubatur
1.300 m³
Beschreibung

Auf einem steilen Bestandsgrundstück in exponierter Hanglage wurde ein neues 3-geschossiges Einfamilienwohnhaus mit Architekturbüro in Massivbauweise (Stahlbeton / KSV mit 20cm Wärmedämmverbundsystem) mit integrierter Doppelgarage erstellt.
Die Erschliessung der Wohnung wurde ebenerdig von der bergseitigen Straße her konzipiert. Die Schlafebene befindet sich darunter. Das Büro befindet sich im Untergeschoss mit separatem Zugang.
Kubatur und Form des Hauses als kompakter Würfel mit Flachdach.
Grosse Verglasungselemente ermöglichen freie Blickbeziehungen über die gesamte Stadt bis hin zur Burgruine "Hohennagold".
Die Beheizung erfolgt über Geothermie (2 Erdbohrungen a 130Meter) in Kombination mit 10kW Photovoltaik (Eigenverbrauch und Einspeisung) auf dem Flachdach. Als KfW 40 Haus konzipiert, ergibt sich in Kombination mit der PV Anlage ein "Nullenergiehaus" –> es werden ca. 10% mehr Strom erzeugt als das Haus für die Beheizung mit der Wärmepumpe und den gesamten allgemeinen Stromverbrauch (Wohnung und Büro) benötigt.

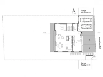
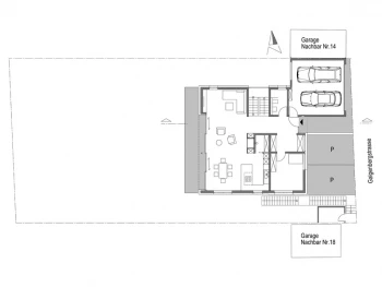
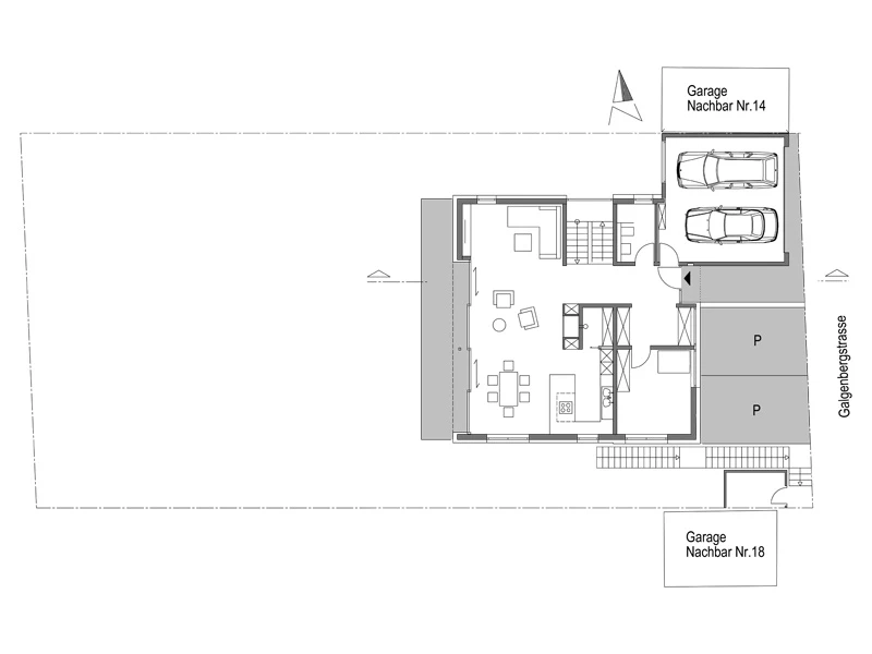
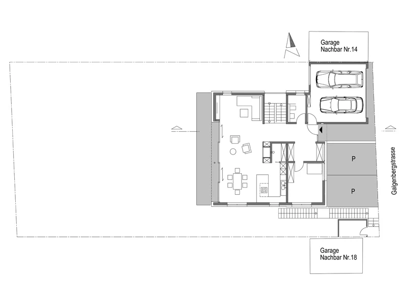
Grundriss Grundriss
Schnitt Schnitt